|
氧化爐|擴散爐|合金爐
適用工藝:擴散、氧化、合金、退火等工藝。 |
|
應用:應用于集成電路、分立器件、光電子器件、電力電子器件、太陽能電池等領域,適用2~8英寸工藝尺寸
產品特點: ◆主機為水平一至三管爐系統構架,獨立完成不同的工藝或相同工藝 ◆工業計算機控制系統,對爐溫、進退舟、氣體流量、閘門等動作進行自動控制 ◆采用懸臂送片器:操作方便、無摩擦污染等 ◆關鍵部件均采用進口,確保設備的高可靠性 ◆工藝管路采用進口閥門管見組成-氣密性好、耐腐蝕、無污染(管路均采用EP級電拋光管 路),流量控制采用質量流量計(MFC)進口 ◆控溫精度高,溫區控溫穩定性好 ◆具有斷電報警、超溫報警、極限超溫報警等多種安全保護功能 ◆高質量的加熱爐體,確保恒溫區的高穩定性及長壽命
氧化爐主要技術指標 1、工藝說明 1.1氧化:干氧工藝,濕氧工藝(去離子水、氫氧合成-內/外點火) 1.2擴散:硼擴、磷擴(液態源、固態源等) 1.3合金、退火等工藝
2、系統組成:主機(加熱體、石英/SiC管、功率組件等)、自動送片(懸臂-SiC)凈化工作臺、氣路氣源系統(氣源柜)、計算機控系統等組成
3、控制方式:手動送片/自動送片
4、氧化爐配置(可選): 4.1儀表控制/計算機控制 4.2工藝管(水平結構):1-3管 4.3工藝規格:2~6英寸晶圓或125mm×125mm、156mm×156mm太陽能電池片(工藝腔體為石英或碳化硅) 4.4恒溫區長度:800mm/600mm/450mm 4.5晶圓裝載:手動/懸臂式(剛玉/碳化硅桿,碳化硅槳) 4.6工作臺:有凈化/無凈化 4.7工藝氣路:對應的工藝氣路,氣路閥門組件采用國際優質品牌產品(如SWAGELOK、PARK、SANDVIK、CARDINAL等等),MFC國際優質(如MKS、UNIT、STEC等)或國產優質
5、主要技術參數: 5.1工作溫度:200~1300℃ 5.2加熱體控制點:3點 5.3爐體恒溫區:450mm/600mm/800mm 5.4恒溫區精度:>800℃/±0.5℃ ,<800℃/±1℃ 5.5單點溫度穩定性:600~1300℃/ ±0.5℃/24h 5.6最大可控升溫速度:15℃/min 5.7最大降溫速度:5℃/min(900~1300℃) 5.8供電:三相四線,380VAC/50HZ
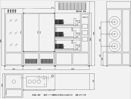
6、氧化爐結構尺寸: 6.1 結構:水平擴散爐 垂直擴散爐 6.2尺寸結構如圖(參考)

|
友情提示:以上產品均為非標類產品,均可根據客戶要求進行定制,因每家要求各不相同,
因此產品只以一張圖片舉例,并未全部列出。本公司兼營進口設備仿制業務,歡迎來電垂詢。
看同類產品☜MASGEL☞到產品大廳 |